清华大学建筑设计研究院有限公司

人防工程设计

企业信息

Information

企业信息

公司名称:清华大学建筑设计研究院有限公司

法人代表:刘玉龙

注册地址:北京市海淀区清华大学院内建筑馆

经营范围

所属行业:专业技术服务业

更多行业:工程设计活动,工程技术与设计服务,专业技术服务业,科学研究和技术服务业

经营范围:许可项目:建设工程设计;文物保护工程设计;文物保护工程勘察;人防工程设计;国土空间规划编制;测绘服务;建筑智能化系统设计;室内环境检测。(依法须经批准的项目,经相关部门批准后方可开展经营活动,具体经营项目以相关部门批准文件或许可证件为准)一般项目:工程管理服务;规划设计管理;工程技术服务(规划管理、勘察、设计、监理除外);工程造价咨询业务;招投标代理服务;水利相关咨询服务;自然科学研究和试验发展;工程和技术研究和试验发展;软件开发;办公服务;会议及展览服务;专业设计服务;技术服务、技术开发、技术咨询、技术交流、技术转让、技术推广;非居住房地产租赁;停车场服务;物业管理;计算机系统服务;计算机软硬件及辅助设备零售;电子产品销售;节能管理服务。(除依法须经批准的项目外,凭营业执照依法自主开展经营活动)(不得从事国家和本市产业政策禁止和限制类项目的经营活动。)

产品大全

Product

南京试点取消施工图审查与专项验收 人防工程设计的新机遇与挑战
南京试点取消施工图审查与专项验收 人防工程设计的新机遇与挑战
更新:2026-04-14 00:31:30
人防工程中通风方式信号控制箱关键技术参数解析
人防工程中通风方式信号控制箱关键技术参数解析
更新:2026-04-14 20:19:04
地下室人防结构安全设计施工图的关键要点与实施策略
地下室人防结构安全设计施工图的关键要点与实施策略
更新:2026-04-14 04:45:08
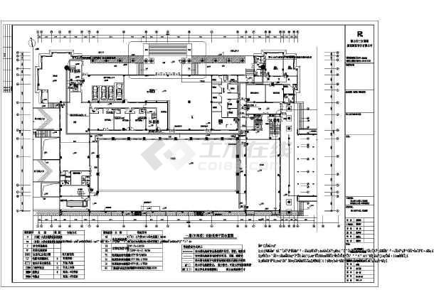
江苏某13800㎡小区地下室人防电气设计施工图解析
江苏某13800㎡小区地下室人防电气设计施工图解析
更新:2026-04-14 01:48:41
人防工程设计入门 从图纸到实践的军事建筑基础
人防工程设计入门 从图纸到实践的军事建筑基础
更新:2026-04-14 02:31:46
今天起,南京成为全国最令人羡慕的城市 这20个规划让你惊呆
今天起,南京成为全国最令人羡慕的城市 这20个规划让你惊呆
更新:2026-04-14 21:19:07
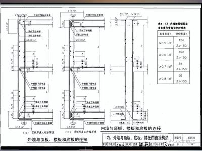
RFJ05-2009人防工程设计大样图解析与应用
RFJ05-2009人防工程设计大样图解析与应用
更新:2026-04-14 08:20:47
人防门槛纵筋锚固计算起始位置解析
人防门槛纵筋锚固计算起始位置解析
更新:2026-04-14 12:19:27
人防工程 构筑地下的生命防线,如何抵御核生化威胁
人防工程 构筑地下的生命防线,如何抵御核生化威胁
更新:2026-04-14 07:53:24
学校人防通风管道工程设计——以鸿凯玉人防工程为例
学校人防通风管道工程设计——以鸿凯玉人防工程为例
更新:2026-04-14 02:37:43
某大型人防工程空调通风及防排烟系统设计与施工图解析
某大型人防工程空调通风及防排烟系统设计与施工图解析
更新:2026-04-14 20:09:08
人防工程设计大样图 核心要点与资源获取指南
人防工程设计大样图 核心要点与资源获取指南
更新:2026-04-14 08:12:59
地下室人防建筑施工设计全套CAD图纸 人防工程设计要点解析
地下室人防建筑施工设计全套CAD图纸 人防工程设计要点解析
更新:2026-04-14 22:12:42
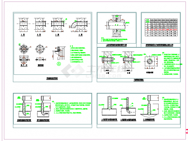
人防口部放大图指导 人防工程设计的关键环节
人防口部放大图指导 人防工程设计的关键环节
更新:2026-04-14 18:22:52
筑牢生命防线 甘肃武威人防门与张掖人防工程的科学设计与战略意义
筑牢生命防线 甘肃武威人防门与张掖人防工程的科学设计与战略意义
更新:2026-04-14 22:23:07
人防工程电气设计常见问题解析
人防工程电气设计常见问题解析
更新:2026-04-14 23:38:42
人防地下室设计与施工 全套图纸资料解读与应用指南
人防地下室设计与施工 全套图纸资料解读与应用指南
更新:2026-04-14 22:58:06
地下车库人防工程设计与CAD施工图解析
地下车库人防工程设计与CAD施工图解析
更新:2026-04-14 14:27:05
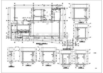
某高层框架结构住宅楼地下室人防设计CAD全套建筑施工图(含设计说明)解析
某高层框架结构住宅楼地下室人防设计CAD全套建筑施工图(含设计说明)解析
更新:2026-04-14 15:36:38
某8度抗震设防区高层教学楼结构设计中人防工程的设计要点与实施策略
某8度抗震设防区高层教学楼结构设计中人防工程的设计要点与实施策略
更新:2026-04-14 01:32:25

联系我们

电话 6279253**
地址 北京市海淀区清华大学院内建筑馆
邮箱 offn**[email protected]

企业简介

清华大学建筑设计研究院有限公司成立于1993年12月06日,注册地位于北京市海淀区清华大学院内建筑馆,法定代表人为刘玉龙。经营范围包括许可项目:建设工程设计;文物保护工程设计;文物保护工程勘察;人防工程设计;国土空间规划编制;测绘服务;建筑智能化系统设计;室内环境检测。(依法须经批准的项目,经相关部门批准后方可开展经营活动,具体经营项目以相关部门批准文件或许可证件为准)一般项目:工程管理服务;规划设计管理;工程技术服务(规划管理、勘察、设计、监理除外);工程造价咨询业务;招投标代理服务;水利相关咨询服务;自然科学研究和试验发展;工程和技术研究和试验发展;软件开发;办公服务;会议及展览服务;专业设计服务;技术服务、技术开发、技术咨询、技术交流、技术转让、技术推广;非居住房地产租赁;停车场服务;物业管理;计算机系统服务;计算机软硬件及辅助设备零售;电子产品销售;节能管理服务。(除依法须经批准的项目外,凭营业执照依法自主开展经营活动)(不得从事国家和本市产业政策禁止和限制类项目的经营活动。)清华大学建筑设计研究院有限公司对外投资6家公司,具有19处分支机构。